Voždovac, 63m2, dvoiposoban stan u novogradnji

Voždovac, Beograd

Cena:
252.642 €

Podeli stan sa prijateljima
Kopiraj link

Detalji oglasa:
Cena:
Tip oglasa:
Tip objekta:
Tip gradnje:
Stanje objekta:
Kvadratura:
Struktura:
Sprat:
Način grejanja:
252.642 €
Prodaja stana
Stan
Novogradnja
Izvorno
63 m2
2.5
3/4
Centralno

Detalji oglasa:
ID 1169

Kontakt: Za više informacija ili dogovor oko razgledanja, pozovite 0114128376

Bez agencijske provizije - direktna cena od investitora

Pravni nadzor - izrada i overa kupoprodajnog ugovora obezbeđena

Prodajemo stan u izgradnji renomiranog investitora, u neposrednoj blizini Gospodara Vučića.

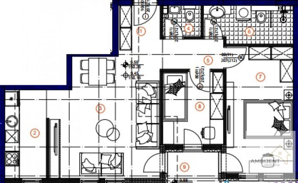
Stan se sastoji od: predsoblja, kuhinje, dnevnog boravka sa trpezarijom, dve sobe,kupatila,wc-a,degažmana i lođe

Materijali i oprema su vrhunskog kvaliteta, poznatih proizvođača:

Prozori Profilati Italija
Roletne aluminijumske, termoizolacione, sa aluminijumskim vođicama i mogućnošću ugradnje komarnika
Elektropogon na taster
Boja aluminijuma RAL, drvo svetli hrast
Fasada sa kamenom vunom debljine 10 cm (Knauf Classic)
Keramika Marazzi

Zgrada se nalazi na izuzetnoj lokaciji, u blizini Osnovne škole Dositej Obradović, na svega 6 minuta vožnje od mega šoping centra.

Idealna nekretnina za udoban i komforan život u mirnom okruženju sa svim potrebnim sadržajima u blizini.

Cena je bez PDV-a pravo na provraćaj imaju kupci prvog stana.

Broj u registru posrednika: 1667
Prijavi grešku u oglasu
Zakažite gledanje stana
Zakažite gledanje stana
Piši nam za sva dodatna pitanja
Selektuj šta te interesuje, odgovorićemo u najkraćem roku:
Ostalo:
Kontakt telefon
Novogradnja Beograd - profilna slika
Novogradnja Beograd

Oglašivač: Ambijent nekretnine
Broj u registru posrednika: 1667
Kontakt telefon: 011 412 83 76