Oglas 1676

Žarkovo, 62m2, dvoiposoban stan u novogradnji

Žarkovo, Beograd

Cena:
164.700 €

Podeli stan sa prijateljima
Kopiraj link

Detalji oglasa:
Cena:
Tip oglasa:
Tip objekta:
Tip gradnje:
Stanje objekta:
Kvadratura:
Struktura:
Sprat:
164.700 €
Prodaja stana
Stan
Novogradnja
Izvorno
62 m2
2.5
4/4

Detalji oglasa:
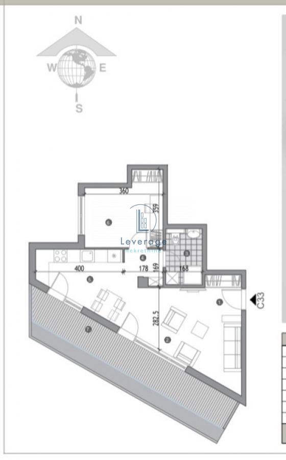
U ponudi je stan u izgradnji, smešten u mirnom i zelenilom okruženom delu Žarkova, idealan za sve koji žele da spoje miran život sa dobrom povezanošću ka centru grada.

Stan je funkcionalno organizovan i sastoji se od ulaznog hodnika, kombinovane sobe, garderobera, 2 kupatila, toaleta, deganžmana, polusobe, spavaće sobe i terase – što ga čini pogodnim kako za pojedince i parove, tako i za manje porodice.

Zgrada je novogradnja, projektovana prema savremenim standardima gradnje i energetske efikasnosti. Lokacija nudi savršen balans između prirode i urbanog života – u blizini je šuma, što omogućava prijatne šetnje i beg od gradske vreve, dok su osnovna škola, marketi, Lilly, DM i druge prodavnice udaljeni samo nekoliko minuta hoda.

Odlična povezanost sa ostatkom grada, bilo da se krećete sopstvenim ili javnim prevozom, omogućava brz i lak pristup svim važnim gradskim zonama.

Ova nekretnina predstavlja sjajnu priliku za one koji traže novi dom u tišini, ali bez odricanja od sadržaja i praktičnosti koje donosi gradski život.

Završetak radova je planiran za jun 2026.

Agencijska provizija iznosi 2% od kupoprodajne cene.

Kontaktirajte nas za više informacija.
Prijavi grešku u oglasu
Zakažite gledanje stana
Zakažite gledanje stana
Piši nam za sva dodatna pitanja
Selektuj šta te interesuje, odgovorićemo u najkraćem roku:
Ostalo:
Kontakt telefon
Novogradnja Beograd - profilna slika
Novogradnja Beograd

Oglašivač: Leverage nekretnine
Broj u registru posrednika: 1152
Kontakt telefon: 011 412 71 88