Batajnica, 62m2, trosoban stan u novogradnji

Batajnica, Beograd

Cena:
131.628 €

Podeli stan sa prijateljima
Kopiraj link

Detalji oglasa:
Cena:
Tip oglasa:
Tip objekta:
Tip gradnje:
Stanje objekta:
Kvadratura:
Struktura:
Sprat:
Način grejanja:
131.628 €
Prodaja stana
Stan
Novogradnja
Izvorno
62 m2
3.0
1
Električno

Detalji oglasa:
ID 1220

Za dodatne informacije i zakazivanje obilaska, pozovite nas na 0114128376

U ponudi trosoban stan u Batajnici, na dobroj lokaciji u blizini centra mesta i autoputa Beograd - Novi Sad, kao i svih sadržaja neophodnih za kvalitetan život.
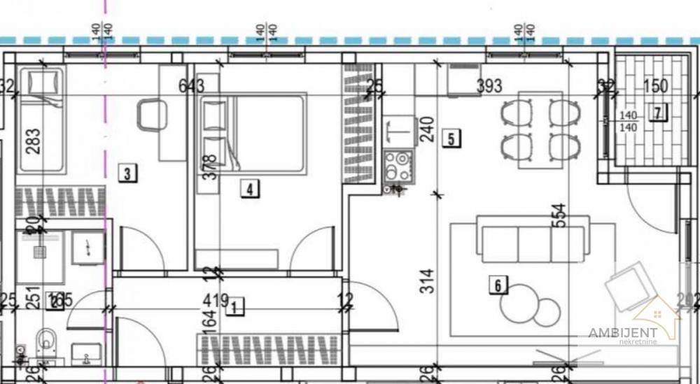
Stan ima 63m2 i čine ga dnevna soba sa kuhinjom i trpezarijom, dve spavaće sobe, hodnik sa prostorom za garderobu, kupatilo i terasa.
Zgrada se gradi od kvalitetnih materijala, a svaki stan će imati zasebno podno grejanje.

Agencijska provizija je 2% od kupoprodajne cene.

Broj u registru posrednika: 1667.
Prijavi grešku u oglasu
Zakažite gledanje stana
Zakažite gledanje stana
Piši nam za sva dodatna pitanja
Selektuj šta te interesuje, odgovorićemo u najkraćem roku:
Ostalo:
Kontakt telefon
Novogradnja Beograd - profilna slika
Novogradnja Beograd

Oglašivač: Ambijent nekretnine
Broj u registru posrednika: 1667
Kontakt telefon: 011 412 83 76