Pašino brdo, 24m2, jednosoban stan u novogradnji

Pašino brdo, Beograd

Cena:
103.236 €

Podeli stan sa prijateljima
Kopiraj link

Detalji oglasa:
Cena:
Tip oglasa:
Tip objekta:
Tip gradnje:
Stanje objekta:
Kvadratura:
Struktura:
Sprat:
103.236 €
Prodaja stana
Stan
Novogradnja
Izvorno
24 m2
1.0
pr/4

Detalji oglasa:
Imamo priliku da vam predstavimo pretprodaju stanova u izuzetno kvalitetnom stambenom objektu, građenom u modernom arhitektonskom stilu, na elitnoj i pažljivo odabranoj lokaciji. Ovaj projekat osmišljen je kao savremena urbana celina koja spaja funkcionalnost gradskog života sa visokim standardima komfora i estetike. U izgradnji se koriste najkvalitetniji materijali dostupni na tržištu, čime se stvara nova adresa koja značajno podiže standard stanovanja u ovom delu grada.

Objekat odlikuje savremen pristup gradnji, vrhunska termo i zvučna izolacija, kao i podno i zidno grejanje, što ga svrstava među najekskluzivnije u okruženju. Pažljivo projektovani prostori pružaju osećaj luksuza, ali i praktičnosti neophodne za svakodnevni život.

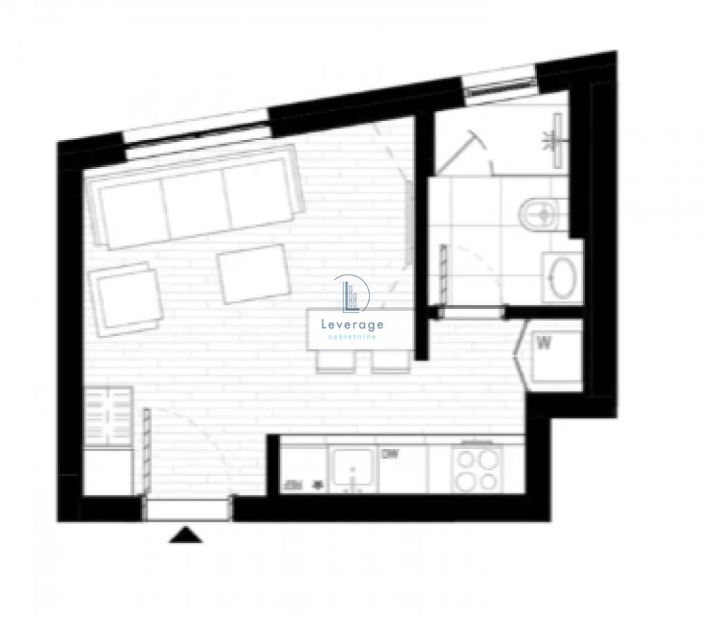
Konkretno, ovaj stan se sastoji od kombinovanog prostora dnevnog boravka i kuhinje, kao i kupatila, idealno rešenje za savremen način života ili kao sigurna investicija.

Ovo je mesto gde se luksuz susreće sa praktičnošću i stvara moderan dom za nove generacije. Postoji mogućnost kupovine garažnog mesta u samom objektu. Planirani rok završetka izgradnje je decembar 2027. godine, što ovu nekretninu čini odličnom prilikom za ulaganje i dugoročno vrednovanje.

Agencijska provizija iznosi 2% od kupoprodajne cene.

Kontaktirajte nas za više informacija.
Prijavi grešku u oglasu
Zakažite gledanje stana
Zakažite gledanje stana
Piši nam za sva dodatna pitanja
Selektuj šta te interesuje, odgovorićemo u najkraćem roku:
Ostalo:
Kontakt telefon
Novogradnja Beograd - profilna slika
Novogradnja Beograd

Oglašivač: Leverage nekretnine
Broj u registru posrednika: 1152
Kontakt telefon: 011 412 71 88