Mirijevo, 41m2, jednoiposoban stan u novogradnji

Mirijevo, Beograd

Cena:
97.618 €

Podeli stan sa prijateljima
Kopiraj link

Detalji oglasa:
Cena:
Tip oglasa:
Tip objekta:
Tip gradnje:
Stanje objekta:
Kvadratura:
Struktura:
Sprat:
97.618 €
Prodaja stana
Stan
Novogradnja
Izvorno
41 m2
1.5
1/4

Detalji oglasa:
ID 929
Direktna cena od investitora bez provizije. Izrada i nadzor overe kupoprodajnog ugovora su obezbeđeni.

- Stan se nalazi u Mirijevu, lokacija zgrade je dovoljno udaljena i zelenilom zaštićena od saobraćajnica, pruža jedinstvenu mogućnost za moderno i komforno stanovanje u ambijentu mira i tišine a opet dovoljno blizu velikog naselja koje ima sve sadržaje za šetnju, sport, rekreaciju, igru i zdravo odrastanje dece.

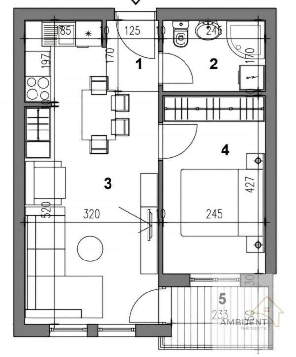
- Struktura stana: ulazni hodnik, prostrani dnevni boravak sa trpezarijom i kuhinjom, spavaća soba, kupatilo i lođa koja je sjajan kutak za odmor ili rad. Stan ovakve strukture se može naći i na trećem spratu.

-Prostorije su pravilnog oblika, funkcionalne i prozračne.

- Postoji mogućnost kupovine parking mesta, cena je 12000e sa pdv-om.

- Mogućnost korigovanja cene u odnosu na način otplate.

Rok završetka radova novembar 2026.

Cena bez PDV-a, a pravo na povraćaj imaju kupci prvog stana.
Broj u registru posrednika 1667.
Kontakt za više informacija ili dogovor oko razgledanja: 0114128376
Prijavi grešku u oglasu
Zakažite gledanje stana
Zakažite gledanje stana
Piši nam za sva dodatna pitanja
Selektuj šta te interesuje, odgovorićemo u najkraćem roku:
Ostalo:
Kontakt telefon
Novogradnja Beograd - profilna slika
Novogradnja Beograd

Oglašivač: Ambijent nekretnine
Broj u registru posrednika: 1667
Kontakt telefon: 011 412 83 76