Oglas 1456

Beograd, 27m2, jednosoban stan u novogradnji


Cena:
50.181 €

Podeli stan sa prijateljima
Kopiraj link

Detalji oglasa:
Cena:
Tip oglasa:
Tip objekta:
Tip gradnje:
Stanje objekta:
Kvadratura:
Struktura:
Sprat:
Način grejanja:
50.181 €
Prodaja stana
Stan
Novogradnja
Izvorno
27 m2
1.0
2/4
Centralno

Detalji oglasa:
U gradu koji se stalno menja i raste, po prvi put niče nešto potpuno novo — kondominijum, prvi takve vrste na ovoj lokaciji.

Zamišljen kao moderan, zatvoren stambeni kompleks sa svim sadržajima unutar samog naselja, ovaj projekat donosi novu dimenziju života. Svaka zgrada ima svoju recepciju – ne samo kao doček, već i kao mesto sigurnosti, informacije i svakodnevne praktičnosti.

Ovde se život organizuje oko vas: prostor za druženje, igraonice za decu, teretana, biciklističke i pešačke staze, kutak za opuštanje, možda i mali kafić – sve što vam je potrebno nalazi se unutar nekoliko koraka od vašeg stana.

Kvalitetna gradnja, pažljivo odabrani materijali, funkcionalni rasporedi stanova i savremena arhitektura nude komfor kakav do sada nije bio uobičajen na ovoj lokaciji. A ono što izdvaja ovaj kondominijum je činjenica da se luksuz ovde ne podrazumeva kao nedostižan — cene su prilagođene realnom tržištu, uz izuzetno povoljan odnos kvaliteta i vrednosti.

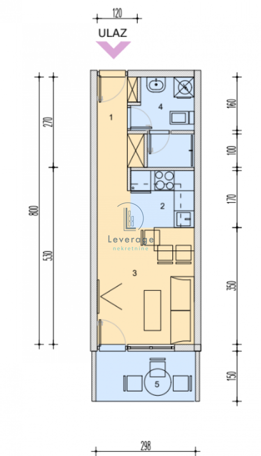
Stan se sastoji od hodnika, kuhinje, dneven sobe sa trpezarijom i terase.

Ako tražite mesto koje nudi sigurnost, organizovanost i osećaj zajednice, a da pri tom ne pravite kompromise ni sa budžetom ni sa standardom – ovo je prilika koju ne treba propustiti.
Dobrodošli u budućnost urbanog stanovanja.

Useljivo od 2027.

Cena je izdražena bez pdv-a. Kupci prvog stana ostvaruju povrat pdv od 10%.

Agencijska provizija iznosi 2% od kupoprodajne cene.

Kontaktirajte nas za više informacija
Prijavi grešku u oglasu
Zakažite gledanje stana
Zakažite gledanje stana
Piši nam za sva dodatna pitanja
Selektuj šta te interesuje, odgovorićemo u najkraćem roku:
Ostalo:
Kontakt telefon
Novogradnja Beograd - profilna slika
Novogradnja Beograd

Oglašivač: Leverage nekretnine
Broj u registru posrednika: 1152
Kontakt telefon: 011 412 71 88