Kaluđerica, 63m2, dvoiposoban stan u novogradnji

Kaluđerica, Beograd

Cena:
172.480 €

Podeli stan sa prijateljima
Kopiraj link

Detalji oglasa:
Cena:
Tip oglasa:
Tip objekta:
Tip gradnje:
Stanje objekta:
Kvadratura:
Struktura:
Sprat:
172.480 €
Prodaja stana
Stan
Novogradnja
Izvorno
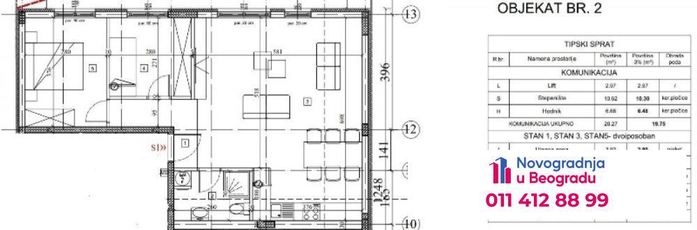
63 m2
2.5
1/4

Detalji oglasa:
Zemun, Sutjeska - Pazovački put

2.5, 63m2, podno grejanje/struja, inverter klima, lift, 1/4, interfon, parking, garaža

Na Pazovačkom putu gradi se zgrada sa tri sprata + povučeni sprat. Zgrada ima i garažu.

Stan je funkcionalan i sastoji se od velikog dnevnog boravka sa kuhinjom, spavaće sobe, hodnika i kupatila.

Stanovi su vrlo funkcionalni, grade se sa vrlo kvalitetnim materijalima - izolacija stiropor 10, španska keramika, PVC stolarija sa troslojnim staklom. Grejanje je podno (na struju) i svaki stan ima svoj kotao, kao i inverter klimu.

Predviđeno useljenje je maj 2026. godine, a predviđena izgrađenost kada će biti moguća kupovina preko stambenog kredita je oktobar 2025. godine.

U cenu stana je uračunat PDV.

Građevinska dozvola.

Agencijska provizija 2%

Agent: Mirela Perović 0114128899 (licenca br.2566)
Prijavi grešku u oglasu
Zakažite gledanje stana
Zakažite gledanje stana
Piši nam za sva dodatna pitanja
Selektuj šta te interesuje, odgovorićemo u najkraćem roku:
Ostalo:
Kontakt telefon
Novogradnja Beograd - profilna slika
Novogradnja Beograd

Oglašivač: Kvadrat nekretnine
Broj u registru posrednika: 167
Kontakt telefon: 011 412 88 99